À Vendre

875 000 $

126 Rue du Docteur-Fauteux , Shawinigan, QC G9P0J2

Isolé 4 Chambres à coucher 2 Salles de bain 1 Salle de bains partielle

Remarques

Nichée au coeur d'un environnement tranquille, cette résidence haut de gamme est un véritable havre de sérénité. Conçue avec une attention minutieuse aux détails, elle offre un équilibre parfait entre élégance, confort et fonctionnalité. Dès l'entrée, vous serez charmé par ses espaces lumineux, ses plafonds majestueux, ses finitions sur mesure et son ambiance chaleureuse. Le terrain paysager, avec ses arbustes fruitiers, son sentier de pierre et son accès direct aux sentiers, crée une harmonie entre nature et luxe. Offrant une vue imprenable sur l'eau, cette propriété allie PRESTIGE, NATURE et SÉRÉNITÉ, créant un lieu de vie incomparable!

Inclusions : 

Luminaires, lave-vaisselle, plaque de cuisson et four encastré, pôles et voilages, thermopompe murale, accessoires du foyer au salon, accessoires piscine creusée, accessoires décoratifs extérieurs (restant dans le cabanon), tous les meubles accrochés au mur au sous-sol, manettes porte électrique garage, bac à déchet/recyclage/compost.

Exclusions : 

Luminaires dans la salle à manger de la cuisine, rideaux du bureau et chambre à coucher au rez-de-chaussée, les tabourets dans la cuisine et les effets personnels des vendeurs.

Résumé de la propriété

  • Voisinage : Shawinigan-Sud
  • Style de bâtiment : Isolé
  • Évaluation du terrain : 133 600,00 $
  • Évaluation de l'immeuble : 570 100,00 $
  • Évaluation totale : 703 700,00 $
  • Année d'évaluation : 2025
  • Taxes municipales : 7 637,00 $
  • Taxe scolaire : 393,00 $
  • Taxes annuelles totales : 8 030,00 $ (2025)
  • Dimensions du terrain : 4294.7 Mètres carrés
  • Largeur du bâtiment 25.04 Mètre
  • Profondeur du bâtiment 8.56 Mètre
  • Nbre d'espaces de stationnement : 6
  • Bâti en : 1967
  • Chambres : 4
  • Salle(s) de bains (complète(s)) : 2
  • Salle(s) de bains partielle(s) : 1
  • Zonage : RESI

Caractéristiques du bâtiment :

  • Allée:
    Béton , Double largeur ou plus
  • Appareils en location (mensuel):
    Réservoir au propane
  • Mode de chauffage:
    Plinthes électriques , Radiant
  • Approvisionnement en eau:
    Municipalité
  • Énergie pour le chauffage:
    Bois , Électricité , Propane
  • Équipement/Services:
    Ouvre-porte électrique (garage) , Rangement extérieur , Thermopompe centrale , Thermopompe murale
  • Fenestration:
    PVC
  • Fondation:
    Béton coulé
  • Foyer-Poêle:
    Foyer au bois , Foyer au gaz
  • Garage:
    Chauffé , Détaché , Double largeur ou plus
  • Particularités du site:
    Aucun voisin à l'arrière , Cul-de-sac
  • Piscine:
    Chauffée , Creusée
  • Proximité:
    Hôpital
  • Revêtement:
    Aluminium , Pierre
  • Sous-sol:
    6 pieds et plus , Totalement aménagé
  • Stationnement:
    Allée , Garage
  • Système d'égouts:
    Municipalité
  • Type de fenestration:
    Manivelle (battant) , Porte-fenêtre

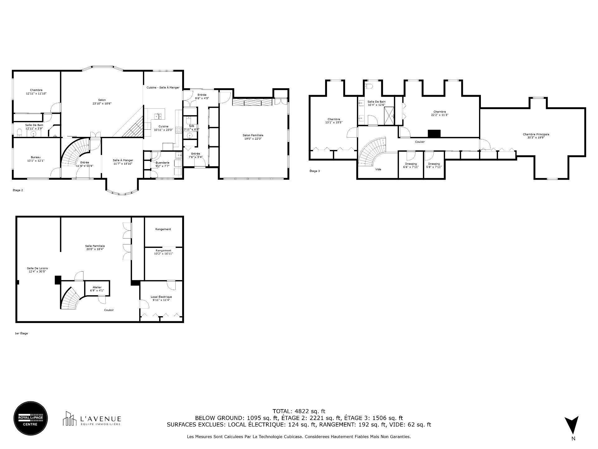
Pièces

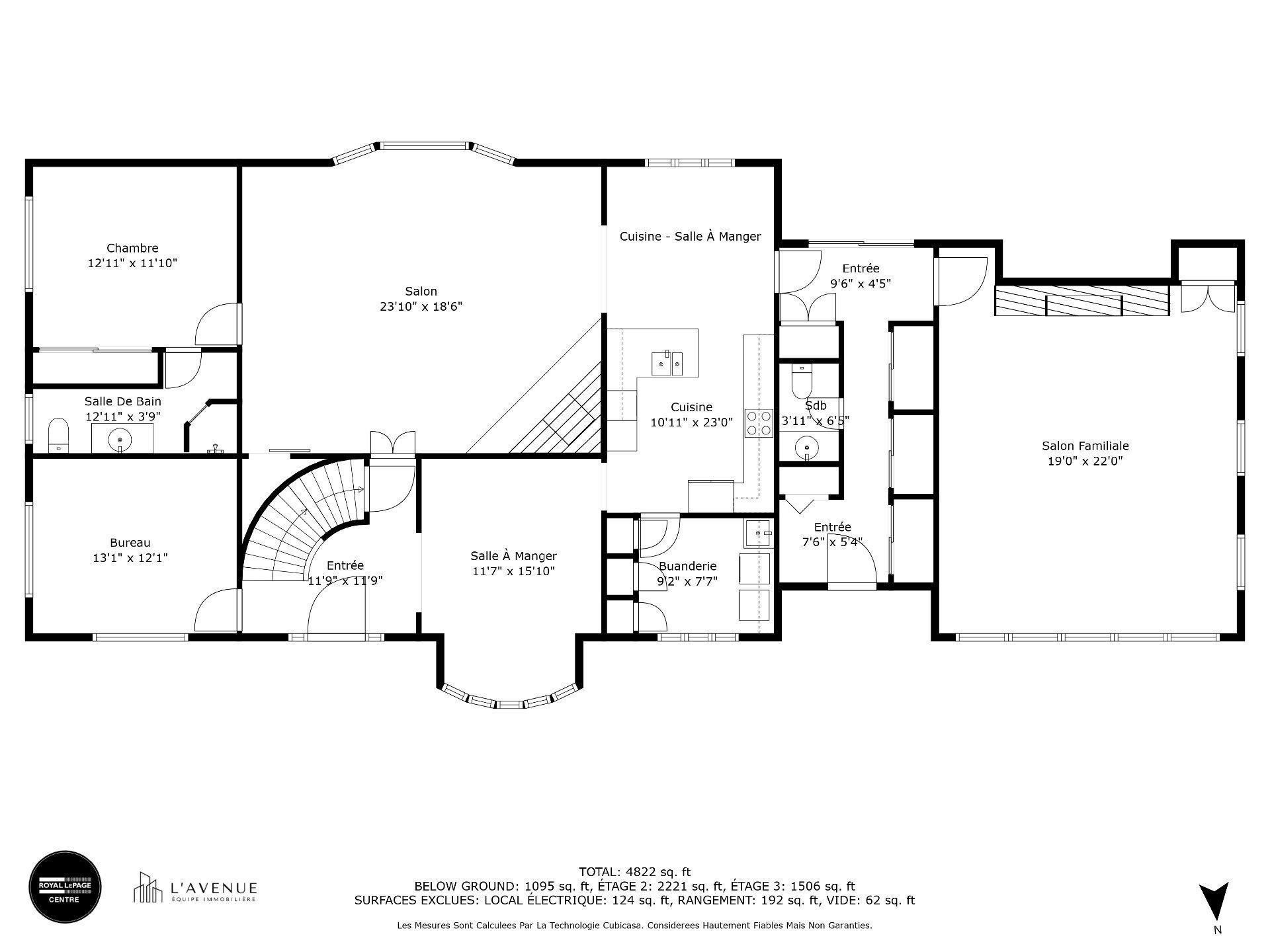
  • Hall d'entrée - Irrégulier:
    Niveau : Rez-de-chaussée 3.58 m x 3.58 m
    Plancher : Bois
  • Bureau:
    Niveau : Rez-de-chaussée 3.99 m x 3.68 m
    Plancher : Autre
  • Salon:
    Niveau : Rez-de-chaussée 7.26 m x 5.64 m
    Plancher : Autre
    Foyer Bois
  • Chambre:
    Niveau : Rez-de-chaussée 3.94 m x 3.61 m
    Plancher : Bois
  • Salle à dîner:
    Niveau : Rez-de-chaussée 3.53 m x 4.83 m
    Plancher : Autre
  • Cuisine:
    Niveau : Rez-de-chaussée 3.33 m x 7.01 m
    Plancher : Céramique
  • Salle de bains:
    Niveau : Rez-de-chaussée 3.94 m x 1.14 m
    Plancher : Céramique
  • Autre:
    Niveau : Rez-de-chaussée 2.79 m x 2.31 m
    Plancher : Céramique
  • Hall d'entrée - Irrégulier:
    Niveau : Rez-de-chaussée 2.90 m x 1.35 m
    Plancher : Céramique
  • Salle d'eau:
    Niveau : Rez-de-chaussée 1.19 m x 1.96 m
    Plancher : Céramique
  • Hall d'entrée - Irrégulier:
    Niveau : Rez-de-chaussée 2.29 m x 1.63 m
    Plancher : Céramique
  • Salle familiale:
    Niveau : Rez-de-chaussée 5.79 m x 6.71 m
    Plancher : Bois
    Foyer Gaz
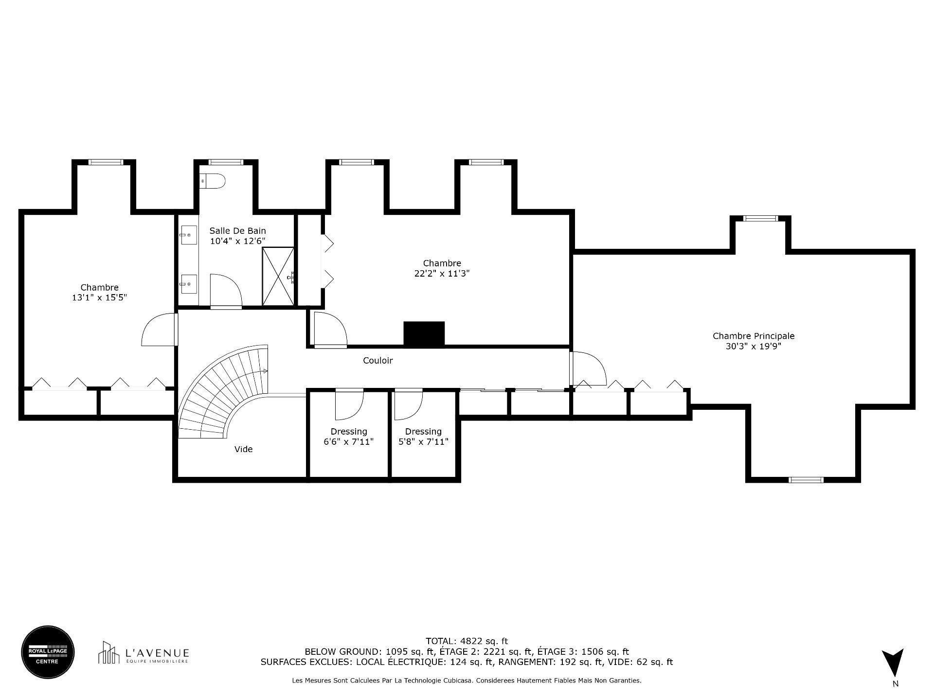
  • Chambre - Irrégulier:
    Niveau : 2e niveau 3.99 m x 4.70 m
    Plancher : Bois
  • Chambre - Irrégulier:
    Niveau : 2e niveau 6.76 m x 3.43 m
    Plancher : Bois
  • Rangement:
    Niveau : 2e niveau 1.98 m x 2.41 m
    Plancher : Bois
  • Rangement:
    Niveau : 2e niveau 1.73 m x 2.41 m
    Plancher : Bois
  • Chambre principale - Irrégulier:
    Niveau : 2e niveau 9.22 m x 6.02 m
    Plancher : Bois
  • Salle de bains:
    Niveau : 2e niveau 3.15 m x 3.81 m
    Plancher : Bois
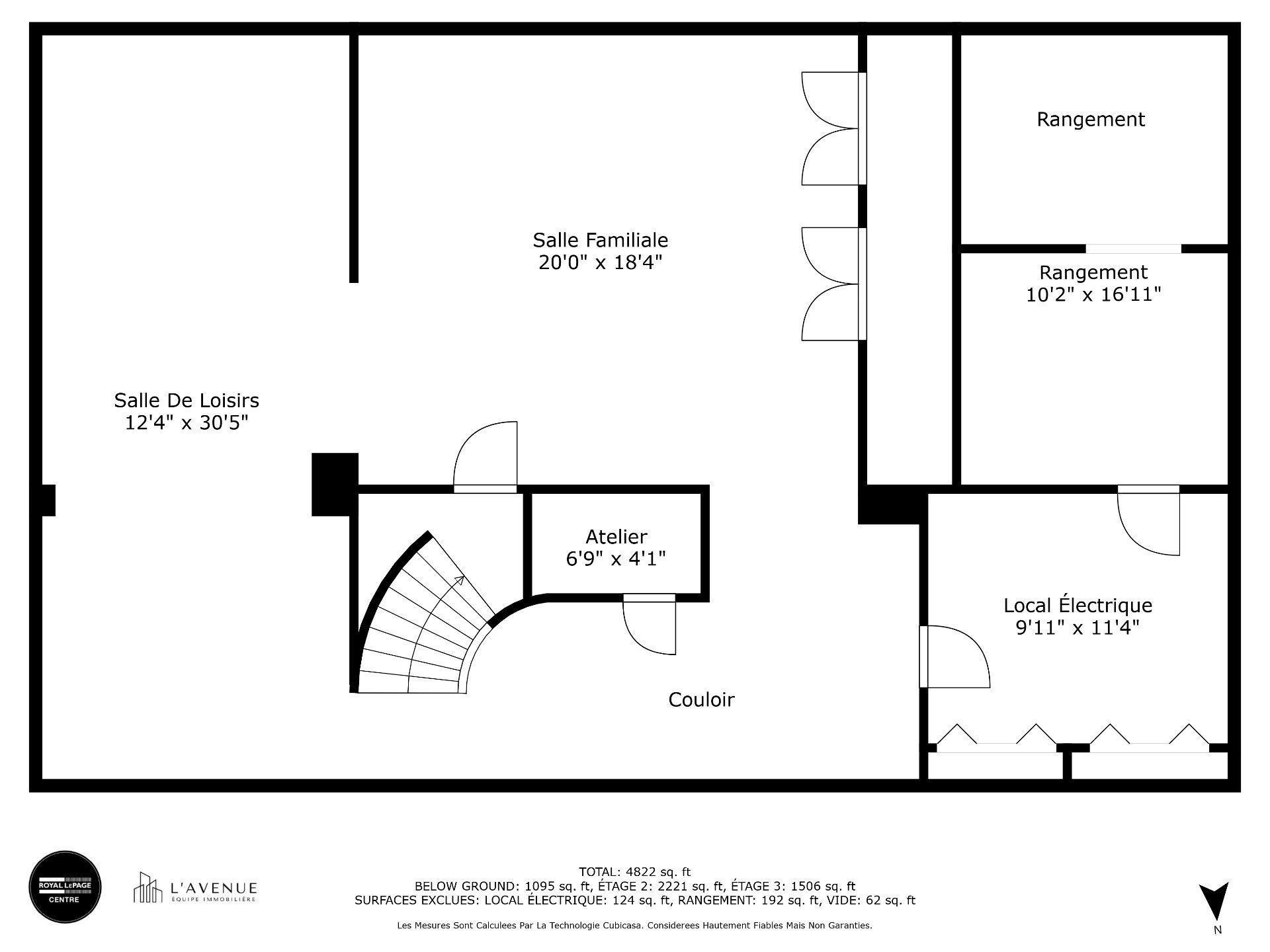
  • Salle familiale:
    Niveau : Sous-sol 6.10 m x 5.59 m
    Plancher : Tapis
  • Salle familiale:
    Niveau : Sous-sol 3.76 m x 9.27 m
    Plancher : Tapis
  • Atelier:
    Niveau : Sous-sol 2.06 m x 1.24 m
    Plancher : Tapis
  • Rangement - Irrégulier:
    Niveau : Sous-sol 3.10 m x 5.16 m
    Plancher : Tapis
  • Autre:
    Niveau : Sous-sol 3.02 m x 3.45 m
    Plancher : Tapis

Dépenses (annuelles)

  • Électricité
    3 750,00 $
Style de vie
Information du quartier
Agent

Isabelle Lecour

Courtier immobilier résidentiel

Isabelle Lecour Inc.

Téléphone : 819.376.6552

Cellulaire : 819.244.8750

Agent

Cloé Perreault

Courtier immobilier résidentiel

Cloé Perreault Inc.

Téléphone : 819.376.6552

Cellulaire : 819.719.3636

Télécopieur à la maison : 819.694.9565

Obtenir plus de renseignements